Základní škola

ulice

Horní 16/742


charakteristika

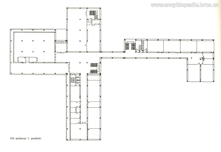
Budova školy postavená v roce 1970 podle projektu J. Ledviny


území

Brno-Štýřice



stavební vývoj

Trojkřídlá budova má ve vstupní dvoupodlažní části centrální šatny, učebny pro speciální výuku a dílny, tělocvičnu a v suterénu bazén.
Učebny jsou orientovány na východ a západ, výuka pro žáky nižšího a vyššího stupně probíhá v oddělených částech.
Projekt: 1968, realizace: 1970, autor: Jaroslav Ledvina.


prameny, literatura


městská část

Brno-střed


významné osoby

Jaroslav Ledvina
autor projektu


objekty

Živly
sochařská realizace: Horní 16/01


autor

Lk