Mateřská škola SNP Brno
ulice
náměstí Slovenského národního povstání (náměstí SNP) 25a/467
charakteristika
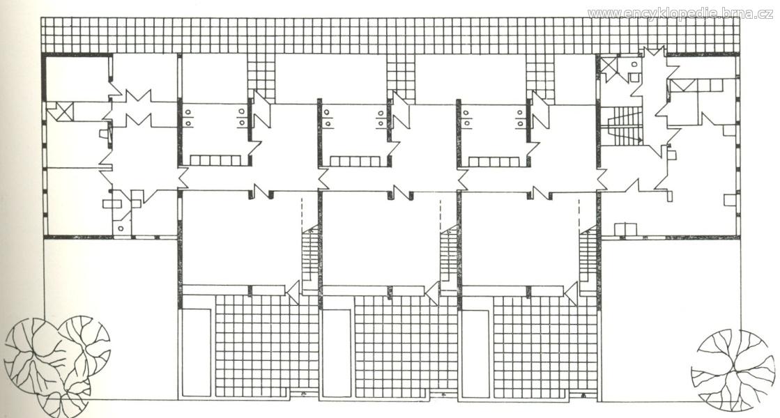
Mateřská škola o kapacitě 90 dětí je typologicky srovnatelná s mateřskou školou na Nejedlého ulici 13 a na Bieblově 16, které vznikly v roce 1966 taktéž podle projektu Miroslava Dufka.
území
Brno-Černá Pole
stavební vývoj
Objekt mateřské školy je tvořen jednou budovou. Ta se provozně dělí na část administrativní, hospodářskou a učebnovou. Učebnová část obsahuje tři oddělení řazené paralelně vedle sebe a navzájem propojené chodbou. Každé oddělení tak tvoří samostatnou buňku, kterou je v případě potřeby možné vyčlenit z provozu.
Projekt 1965, realizace 1966, autor: Miroslav Dufek.
prameny, literatura
Ostatní literatura
stavby
Mateřská škola
Bieblova 16/161
Mateřská škola
Nejedlého 13/261
městská část
významné osoby
Miroslav Dufek
autor projektu
autor
PeDro