Mateřská škola

historický název

Mateřská škola a jesle


ulice

Brechtova 6/815


charakteristika

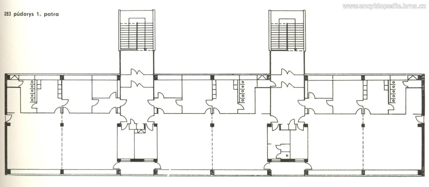
Školní zařízení koncipované tak, aby zahrnovalo dvě oddělení jeslí pro 35 dětí a tři oddělení mateřské školy o kapacitě 90 dětí.


území

Brno-Lesná


vznik

1967


stavební vývoj

Provoz je navržen jako soustava samostatných celků s vlastními vstupy a společným hospodářským zázemím, s důrazem na přehlednost, hygienu a funkční vazby. V přízemí dvoupodlažního objektu jsou situována oddělení jeslí a hospodářské zázemí, zatímco v patře se nacházejí oddělení mateřské školy. Jednotlivé provozy jsou propojeny komunikačními celky obsahujícími vstupní haly, úschovny kočárků, šatny personálu, přípravny jídel a výtahy na stravu. Každé z oddělení pak zahrnuje hernu, lehárnu, šatnu, hygienické zázemí a izolační místnost. Interiéry hlavních místností jsou obloženy dřevem a keramickými pásky, herny a lehárny jsou vybaveny vestavěným nábytkem. Objekt je zasazen do svažitého terénu, který umožňuje oddělené vstupy do jeslí a mateřské školy.

Projekt: 1965, stavba: 1967, architekt: Miroslav Dufek.


prameny, literatura

Ostatní literatura

"Školy Jihomoravského kraje"


městská část

Brno-sever


významné osoby

Miroslav Dufek
architekt


autor

PeDro