Základní škola

ulice

Úvoz 55/423


charakteristika

Základní škola o trojkřídlé dispozici vznikla podle projektu Jaroslava Ledviny. Podobnou typovou analogii autor projektu vytvořil u o rok starší školy na Bakalově nábřeží.


území

Brno-Veveří


stavební vývoj

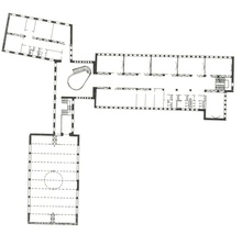
Trojkřídlá dispozice školy je členěna podle funkcí. Nejmohutnější čtyřpodlažní část budovy, kopírující směr Úvozu, byla určena pro výuku žáků. Většina učeben je směřována do ulice a kabinety učitelů zase opačně do dvora. Drobné křídlo šikmo k silnici, podpírané sloupky vytvářejícími průchozí podloubí, nabídlo prostory pro mimovýukové aktivity. Tělocvična a jídelna se v pravém úhlu od učebního křídla stáčely směrem k mateřské škole. Jednotlivá křídla se sbíhají v centrální vstupní hale s oválným schodištěm a ochozem, zaklenuté kopulí o průměru 12 metrů s kruhovými luxfery, jejichž kompozice vytváří mapu hvězdné oblohy.
Přístup ke škole je řešen pomocí kaskády teras se schodišti, kde byla v roce 1962 na mramorový podstavec osazena bronzová plastika Spartakiáda. Dvoupodlažní křídlo pro mimoškolní zázemí bylo v témže roce vyzdobeno velkoformátovou malbou na fasádě Kohout a slunce.
I přes pozdější dodatečné přístavby je původní dispozice školy dodnes dobře patrná. Barevnost fasád, původní okna i umělecká výzdoba průčelí se kvůli zateplení budovy nedochovala.

Projekt: 1959, realizace: 1961–1962, autor: Jaroslav Ledvina.


prameny, literatura


stavby

Základní škola
Bakalovo nábřeží 8/8
školní budova s podobným řešením od stejného projektanta


městská část

Brno-střed


významné osoby

Jaroslav Ledvina
autor projektu


objekty

Spartakiáda
plastika: Úvoz 55/01
před budovou základní školy
Kohout a slunce
nástěnná malba: Úvoz 55/02


události

1. 9. 1961
Slavnostní otevření nové silnice a nové školy na Úvoze



autor

Lk, PeDro