Základní škola, Taneční konzervatoř

ulice

Nejedlého 3/375


území

Brno-Lesná


poznámka

Podobná typologie školy byla analogicky použita i u školy Blažkova 9 a Milénova 14 na Lesné a ve dvou školách v Žabovřeskách (náměstí Svornosti 7 a Plovdivská 8).


stavební vývoj

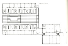
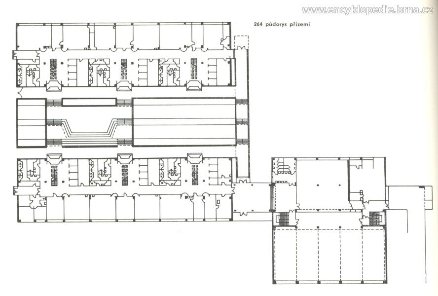
Původně 24 tříd školy bylo umístěno ve dvou pavilonech (diferenciace podle věku), ve třetím byly hlučné provozy - tělocvična, jídelna, dílny.
Ze dvora byl vstup do centrální haly se šatnami, napojené na pavilony zasklenou chodbou. Třídy s vlastním hygienickým zázemím byly soustředěny kolem respiria.

Realizace: 1960–1962 a 1966; autoři: Miroslav Dufek, Viktor Rudiš, František Zounek.


prameny, literatura


stavby

Základní škola
Blažkova 9/21


městská část

Brno-sever


významné osoby

Miroslav Dufek
projektant Viktor Rudiš
projektant František Zounek
projektant


autor

Lk, PeDro