Mateřská škola

historický název

mateřská škola a jesle


ulice

Herčíkova 12/2477


charakteristika

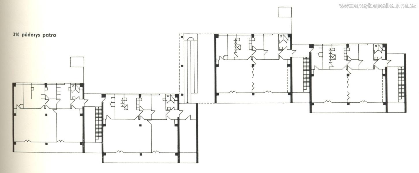
Budova Mateřské školy a jeslí postavená v roce 1970 podle projektu Miroslava Dufka


území

Brno-Královo Pole



stavební vývoj

Dvoupodlažní mateřská škola pro 90 dětí a jesle pro 55 dětí byly provozně odděleny a umístěny v samostatných křídlech. Každé z obou zařízení mělo tři oddělení, dvě v patře a jedno v přízemí, kde se nacházelo také administrativní a provozní zázemí.
Architektonicky zajímavé jsou vstupní průchozí haly s volným jednoramenným shodištěm do patra, které umožnily vstup do oddělení z uliční i zahradní strany.

Projekt mateřské školy a jeslí byl opakovaně použit - kromě sídliště v Králově Poli také v Řečkovicích a v Bohunicích.
Projekt: 1969, realizace: 1970, autor: Miroslav Dufek.


prameny, literatura


městská část

Brno-Královo Pole


významné osoby

Miroslav Dufek
autor projektu


autor

Lk